Описание

Усадебный комплекс «Дубы» расположен на живописной прилесной территории, в заповедной зоне. Просторный участок площадью 155 соток украшен вековыми дубами. Вокруг жилого дома обустроена крытая терраса, с которой открываются виды на густой смешанный лес. Есть выход в лесную зону. На участке выполнен дорогой ландшафтный дизайн, есть велодорожка. Зеленая территория с множеством растений и цветов.

Центральным элементом комплекса является роскошный дом из бруса. Фасад дома выполнен в стиле альпийского шале, создавая ассоциации с горными вершинами. Впечатляющий эркер скрывает просторную гостиную, в центре которой расположена парадная лестница, являющаяся ключевым элементом интерьера.

Усадьба уникальна современным техническим оснащением: система видеонаблюдения, дистанционное управление климатом, акустические системы, автополив участка, высокоскоростной интернет и два оборудованных кинозала.

На участке отдельно расположены: гостевой дом-250 кв.м.,СПА-комплекс-225 кв.м., павильон с барбекю и кинотеатром-100КВ.М., хозяйственный блок и гаражи на 4 м/м-325 кв.м.

Павильон с зоной барбекю и летним кинотеатром прекрасно оборудован: помимо кухни с дровяной печью, установлены профессиональные мангалы, а для летнего кинотеатра установлена профессиональная акустическая система.

Все строения из бруса, Хонка, индивидуальный дизайн, мебель и техника лучших брендов

уникальное техническое оснащение.

Имеется собственная вертолетная площадка.

Количество спален: 7

Тип дома: Брус

Готовность: Готов полностью

Категория земли: Земли нас. пунктов, ИЖС

Бассейн: Да

Сауна: Да

Под ключ: Да

Баня на участке: Да

Есть вопросы по объекту? Звоните

Коммуникации

Газ: Да

Канализация: центральная

Водопровод: центральный

Электричество, кВт: 80

Планировка

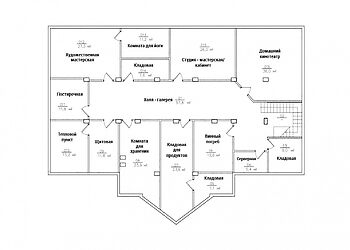
Планировка:

Цоколь: Холл-галерея, домашний кинотеатр, винная комната, художественная мастерская, комната для йоги, студия-мастерская/кабинет, кладовая, постирочная, щитовая, серверная, кладовая для продуктов, комната для хранения;

Первый этаж: Прихожая, гардеробная, су, гостиная с камином и вторым светом, кухня-столовая с выходом на просторную террасу с видом на лес, кабинет с камином и выходом на просторную террасу, мастер зона: холл, спальня с выходом на террасу, ванная комната, 2 гардеробные;

Второй этаж: Большая детская игровая с балконом, 4 спальни, 2 су.

Описание поселка

Клубный поселок Николо-Прозорово находится в экологически чистом районе Московской области, в 20 км от МКАД по Дмитровскому шоссе, на берегу Пестовского водохранилища.

В пешей доступности для жителей поселка Николо-Прозорово доступна вся инфраструктура коттеджного поселка Зеленый мыс: яхт-клуб, ресторан на воде «Волна», фитнес клуб с бассейном, Ломоносовская гимназия и многое другое. Рядом с поселком расположена усадьба князей Прозоровских и православный храм Святителя Николая Чудотворца. Поблизости расположен торгово-развлекательный комплекс «Каштановая роща» со всем необходимым: супермаркет «Азбука Вкуса», аптека, ресторан, салон красоты, детский спортивно-развлекательный клуб с батутным центром, зоомагазин.

Читать далее

Инфраструктура

На территории поселка:

Детский сад
Школа
Супермаркет
Ресторан
Медцентр
Фитнесцентр
Детские площадки
Спортивная площадка

Лот: 100382480

890000000

11562600

9887600

Записаться на просмотр
Предложите свою цену
В сравнение В избранное Скачать

1500 м2

1.55 Га

7 спален

Под ключ

Дмитровское шоссе

20 км от МКАД

в ипотеку

Ваш персональный менеджер

Лапина Кристина
Специалист по работе
с загородной недвижимостью

7 (499) 117-02-50
Перезвонить мне

Похожие предложения

Лапина Кристина
Специалист по работе
с загородной недвижимостью

Помогу подобрать Вам дом быстро и по привлекательной цене

Расположение поселка

Выбор поселка по шоссе

Дмитровское шоссе
Новорижское шоссе
Горьковское шоссе
Путилковское шоссе
Рогачевское шоссе
Рублево-Успенское шоссе
Всего лотов: 9 лотов
Всего лотов: 1 лот
Всего лотов: 24 лота
Всего лотов: 1 лот
Всего лотов: 20 лотов
Всего лотов: 8 лотов
Всего лотов: 19 лотов
×
Заявка отправлена