Для корректной работы сайта выключите VPN

Описание

Вашему вниманию представлен одноэтажный экодом в современном охраняемом коттеджном поселке "Миронцево", расположенном в 55 км от МКАД по Пятницкому шоссе. Вы можете выбрать для себя так же маршруты по М-11 или Ленинградскому шоссе.

Дом построен из керамических блоков - это экологично, а дом становится легче и не подвержен колебаниям температуры или влажности. Кроме того, этот материал считается гипоаллергенным.
В доме предустановлена система "умный дом", все коммуникации заведены, кроме газа - он подведен к участку и может быть подключен по желанию покупателя.

Количество спален: 1

Тип дома: кирпичный

Готовность: Под отделку

Категория земли: Земли нас. пунктов, ИЖС

Охраняемая территория: Да

Есть вопросы по объекту? Звоните

Коммуникации

Газ: Да

Канализация: центральная

Водопровод: центральный

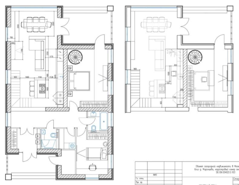
Планировка

Первый этаж: холл, кухня-гостина, два санузла, мастер-спальня с гардеробной и вторым светом, терраса, котельная.

Описание поселка

Охраняемый коттеджный поселок «Миронцево» находится на берегу Истринского водохранилища в 55 км от МКАД по Пятницкому шоссе. При этом в районе сохраняется приятный микроклимат, поскольку дорогу от поселка отделяет лесополоса.
В поселке возводятся в общей сложности 260 одно- и двухэтажных домов, площадь участков от 11 до 33 соток. Дома выполняются в едином минималистичном стиле: для облицовки фасадов используют обработанные маслом планкены из лиственницы, которые отличаются высокой прочностью и длительным сроком службы. Основной древесный оттенок домов сочетается с черной фальцевой кровлей. Лаконичные цвета и правильные пропорции «оживит» панорамное остекление, словно впускающее солнце и природу в архитектуру.
На охраняемой территории поселка можно будет воспользоваться богатой инфраструктурой - смотровая площадка, эко магазин, коворкинг на 80 мест, уличный амфитеатр, зоны для занятий йогой, зона для барбекю, свой пруд и яблоневый сад. За пределами поселка есть школа, детский сад, магазины и пляжи.
Ближайшие крупные автомагистрали – Пятницкое шоссе и скоростная трасса «Нева» (М-11) – расположены в 15 минутах езды на автомобиле.

Читать далее

Инфраструктура

На территории поселка:

Лот: 132164808

29000000

387600

331400

Записаться на просмотр
Предложите свою цену
В сравнение В избранное Скачать

145 м2

9 соток

1 спальня

Без отделки

Пятницкое шоссе

55 км от МКАД

в ипотеку

Ваш персональный менеджер

Васильева Анжелика
Специалист по работе
с загородной недвижимостью

+7 (499) 110-60-98
Перезвонить мне

Похожие предложения

Васильева Анжелика
Специалист по работе
с загородной недвижимостью

Помогу подобрать Вам дом быстро и по привлекательной цене

Расположение поселка

Выбор поселка по шоссе

Дмитровское шоссе
Новорижское шоссе
Горьковское шоссе
Путилковское шоссе
Рогачевское шоссе
Рублево-Успенское шоссе
Всего лотов: 9 лотов
Всего лотов: 1 лот
Всего лотов: 24 лота
Всего лотов: 1 лот
Всего лотов: 20 лотов
Всего лотов: 8 лотов
Всего лотов: 19 лотов
×
Заявка отправлена