Для корректной работы сайта выключите VPN

Описание

Вашему вниманию представлен дом 241 кв.м. на участке 10 соток в КП "Ла-Манш", расположенный в 51 км от МКАД по Новорижскому шоссе.

Дом построен из керамического блока Kaiman, облицовка выполнена из керамического кирпича, перекрытия - монолитные, кровля - гибкая черепица Katepal (Финляндия), фундамент -монолитный.
В доме отлита монолитная лестница, высота потолков на первом и втором этажах 3,2 метра. Установлено остекление - профиль SoftLine 70 с усиленным армированием теплопакетами. Фурнитура Roto полной комплектации. Металлические двери с терморазрывом Цинкогрунт и покрашены порошковым напылением. Замки Муар 4-го класса Гардиан.
В доме возведены перегородки, выровнены и отштукатурены стены.
В гараже установлены ворота с электроприводом Hormann (Германия), привод RroLift700.
Все центральные коммуникации: газоснабжение, электричество 15 кВт, водоснабжение и канализация. Газ проходит по границе участка. Электричество заведено в дом.

Участок — это готовое пространство для отдыха. Здесь уже выполнена профессиональная дренажная система, уложен сочный рулонный газон и высажены декоративные хвойные деревья и кустарники. Свободная площадь позволяет легко разместить дополнительные зоны: от уютной беседки до зоны барбекю.

Количество спален: 5

Тип дома: Блоки

Готовность: Готов полностью

Категория земли: ДНП

Охраняемая территория: Да

Есть вопросы по объекту? Звоните

Коммуникации

Газ: Да

Канализация: центральная

Водопровод: центральный

Электричество, кВт: 15

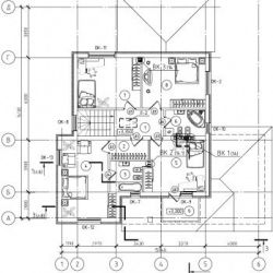
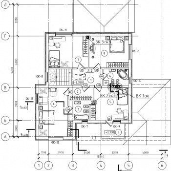
Планировка

Первый этаж: прихожая, выход в гараж, гостевой санузел, спальня, кухня - столовая - гостиная с выходом на террасу;
Второй этаж: три спальни, санузел, мастер-спальня с санузлом и гардеробной.

Описание поселка

Коттеджный поселок «Ла-Манш», расположенный в 51 км от МКАД по Новорижскому шоссе (Истринский район). Поселок разделен на тематические кварталы: Франция, Англия, Ирландия, которые отличаются архитектурными решениями и ландшафтным дизайном.
Имеет собственную инфраструктуру: пляж на реке, зоны отдыха, обустроен каскад прудов с пляжной зоной. Парковая зона, детские и спортивные площадки, зоны для барбекю.
Территория поселка полностью огорожена, организована въездная группа. Все центральные коммуникации: газоснабжение, электричество, водопровод и канализация.
Экологически чистая зона, рядом густой лес, в 15 минутах — конноспортивный клуб и форелевое хозяйство.
Поселок «Ла-Манш» подходит для постоянного проживания, предлагая сочетание европейской архитектуры, развитой инфраструктуры и живописной природы Подмосковья.

Добраться до коттеджного поселка “Ла-Манш” можно как на личном автомобиле, так и на общественном транспорте. На электричке от Рижского вокзала время в пути займет 1 час 40 минут. На автобусе можно доехать до станции Алексеевка, поселок расположен в 300 метрах от остановки. Время в пути на личном автомобиле займет около 1 часа.

Читать далее

Инфраструктура

На территории поселка:

Пляж
Парк
Детские площадки
Спортивная площадка

Лот: 133330086

33000000

451200

382500

Записаться на просмотр
Предложите свою цену
В сравнение В избранное Скачать

241 м2

10.4 соток

5 спален

Без отделки

Новорижское шоссе

51 км от МКАД

в ипотеку

Ваш персональный менеджер

Попова Нина
Эксперт по загородной недвижимости

+7 (499) 288-14-79
Перезвонить мне

Похожие предложения

Попова Нина
Эксперт по загородной недвижимости

Помогу подобрать Вам дом быстро и по привлекательной цене

Расположение поселка

Выбор поселка по шоссе

Дмитровское шоссе
Новорижское шоссе
Горьковское шоссе
Путилковское шоссе
Рогачевское шоссе
Рублево-Успенское шоссе
Всего лотов: 9 лотов
Всего лотов: 1 лот
Всего лотов: 24 лота
Всего лотов: 1 лот
Всего лотов: 20 лотов
Всего лотов: 8 лотов
Всего лотов: 19 лотов
×
Заявка отправлена