Для корректной работы сайта выключите VPN

Описание

Вашему вниманию представляется новый -одноэтажный дом под ключ, площадью 132 кв.м., расположенный на участке 9,6 соток в коттеджном поселке Калипсо Вилладж - 1. Поселок находится в 26км от МКАД по Дмитровскому шоссе, в непосредственной близости от Икшинского водохранилища.
Строительство современного дома завершено в 2025 году по индивидуальному проекту.
Продуманная планировка с высокими потолками, расположение объекта в приватной части поселка, создают комфортные условия для круглогодичного проживания.
Плоская кровля, витражные окна, натуральные материалы дополняют экстерьер дома эстетикой.
Для обеспечения комфорта проживающих, водяное отопление разведено по полу, установлена вытяжная вентиляция с автоматическими датчиками газоанализаторами.
Участок правильной ровной формы, огорожен по периметру, установлены откатные ворота.

Количество спален: 3

Тип дома: Пенобетон

Готовность: Готов полностью

Категория земли: Земли нас. пунктов, ИЖС

Под ключ: Да

Есть вопросы по объекту? Звоните

Коммуникации

Газ: Да

Канализация: Септик

Водопровод: скважина

Электричество, кВт: 15

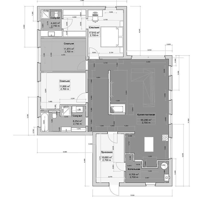
Планировка

Прихожая, котельная, кухня-столовая -гостиная , основная спальня с гардеробной и санузлом, две спальни, санузел.

Описание поселка

Коттеджный поселок "Калипсо Вилладж-1" расположен в 26 км от МКАД по Дмитровскому шоссе. Помимо автомобиля добираться в Коттеджный Поселок «Калипсо Вилладж - 1» удобно на электричке - до платформы Трудовая 10 минут неспешным шагом.
Лес по границе поселка, а в пешей доступности озеро. Район отличает прекрасная инфраструктура. В нескольких минутах езды находиться поселок Некрасовский , в котором присутсвуют супермаркеты, есть школа, детский сад, поликлиника, аптека.
Поселок электро- и газифицирован, установлены ограждения по периметру, КПП, охрана.
Выбирая «Калипсо Вилладж -1» вы получаете комфортабельную жизнь с развитой инфраструктурой в окружении живописной природы и чистейшей экологии.

Читать далее

Инфраструктура

На территории поселка:

Лот: 129069577

33000000

438000

373600

Записаться на просмотр
Предложите свою цену
В сравнение В избранное Скачать

132 м2

9.7 соток

3 спальни

Под ключ

Дмитровское шоссе

26 км от МКАД

в ипотеку

Ваш персональный менеджер

Глухов Макар
Ведущий специалист по работе
с загородной недвижимостью

+7 (499) 288-19-81
Перезвонить мне

Похожие предложения

Глухов Макар
Ведущий специалист по работе
с загородной недвижимостью

Помогу подобрать Вам дом быстро и по привлекательной цене

Расположение поселка

Выбор поселка по шоссе

Дмитровское шоссе
Новорижское шоссе
Горьковское шоссе
Путилковское шоссе
Рогачевское шоссе
Рублево-Успенское шоссе
Всего лотов: 9 лотов
Всего лотов: 1 лот
Всего лотов: 24 лота
Всего лотов: 1 лот
Всего лотов: 20 лотов
Всего лотов: 8 лотов
Всего лотов: 19 лотов
×
Заявка отправлена