Для корректной работы сайта выключите VPN

Описание

Вашему вниманию представляется новый -одноэтажный дом под ключ, площадью 132 кв.м., расположенный на участке 6,5 соток в коттеджном поселке Калипсо Вилладж - 1. Поселок находится в 26км от МКАД по Дмитровскому шоссе, в непосредственной близости от Икшинского водохранилища.
Строительство современного дома завершено в 2025 году по индивидуальному проекту.
Продуманная планировка с высокими потолками, расположение объекта в приватной части поселка, создают комфортные условия для круглогодичного проживания.
Плоская кровля, витражные окна , натуральные материалы дополняют экстерьер дома эстетикой.
Для обеспечения комфорта проживающих, водяное отопление разведено по полу, установлена вытяжная вентиляция с автоматическими датчиками газоанализаторами.
Участок правильной ровной формы, огорожен по периметру , установлены откатные ворота.

Количество спален: 3

Санузел: 2

Тип дома: Газобетон

Готовность: Готов полностью

Категория земли: Земли нас. пунктов, ИЖС

Под ключ: Да

Есть вопросы по объекту? Звоните

Коммуникации

Газ: Да

Канализация: Септик

Водопровод: скважина

Электричество, кВт: 15

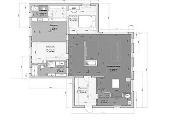
Планировка

Прихожая, котельная , кухня-столовая гостиная , основная спальня с гардеробной и санузлом, две спальни, санузел.

Описание поселка

Коттеджный поселок "Калипсо Вилладж-1" расположен в 26 км от МКАД по Дмитровскому шоссе. Помимо автомобиля добираться в Коттеджный Поселок «Калипсо Вилладж - 1» удобно на электричке - до платформы Трудовая 10 минут неспешным шагом.
Лес по границе поселка, а в пешей доступности озеро. Район отличает прекрасная инфраструктура. В нескольких минутах езды находиться поселок Некрасовский , в котором присутсвуют супермаркеты, есть школа, детский сад, поликлиника, аптека.
Поселок электро- и газифицирован, установлены ограждения по периметру, КПП, охрана.
Выбирая «Калипсо Вилладж -1» вы получаете комфортабельную жизнь с развитой инфраструктурой в окружении живописной природы и чистейшей экологии.

Читать далее

Инфраструктура

На территории поселка:

Лот: 128761371

30000000

398200

339600

Записаться на просмотр
Предложите свою цену
В сравнение В избранное Скачать

132 м2

6.5 соток

3 спальни

Под ключ

Дмитровское шоссе

26 км от МКАД

в ипотеку

Ваш персональный менеджер

Глухов Макар
Ведущий специалист по работе
с загородной недвижимостью

+7 (499) 288-19-81
Перезвонить мне

Похожие предложения

Глухов Макар
Ведущий специалист по работе
с загородной недвижимостью

Помогу подобрать Вам дом быстро и по привлекательной цене

Расположение поселка

Выбор поселка по шоссе

Дмитровское шоссе
Новорижское шоссе
Горьковское шоссе
Путилковское шоссе
Рогачевское шоссе
Рублево-Успенское шоссе
Всего лотов: 9 лотов
Всего лотов: 1 лот
Всего лотов: 24 лота
Всего лотов: 1 лот
Всего лотов: 20 лотов
Всего лотов: 8 лотов
Всего лотов: 19 лотов
×
Заявка отправлена