Для корректной работы сайта выключите VPN

Описание

Предлагаем Вашему вниманию новый дом "под ключ" площадью 150 кв. м в охраняемом коттеджном поселке "Ильинские сады", расположенном в 6 км от МКАД по Новорижскому шоссе.
Дом построен по архитектурному и дизайнерскому проекту с использованием современных материалов и технологий. Панорамное остекление, установлены мультифункциональные стеклопакеты Solar с защитой от ультрафиолетовых лучей. Есть фото и видео всех этапов строительных работ.

На первом этаже просторная светлая гостиная с кухней-столовой и выходом на террасу. Дом оборудован современными системами приточно-вытяжной вентиляции и системой кондиционирования. Установлены теплые водяные полы. Выполнена подготовка к системе "Умный дом" и система защиты от протечек.
В доме эксплуатируемая кровля, есть выход со второго этажа. Можно сделать террасу или полноценный жилой этаж площадью 65 кв. м.
В доме все центральные коммуникации: электроснабжение, газоснабжение, холодное водоснабжение, канализация, в том числе и ливневая.

Участок правильной формы, площадью 6 соток, хорошо освещен. Участок благоустроен, высажены деревья, выполнен ландшафтный дизайн, дренаж по периметру дома.
На территории крытая парковка на два автомобиля, установлены автоматические ворота.

Количество спален: 3

Тип балкона: терраса

Тип дома: Газобетон

Готовность: Готов полностью

Категория земли: Земли сельхоз. назначения, дачное строительство

Охраняемая территория: Да

Есть вопросы по объекту? Звоните

Коммуникации

Газ: Да

Канализация: центральная

Водопровод: центральный

Электричество, кВт: 15

Планировка

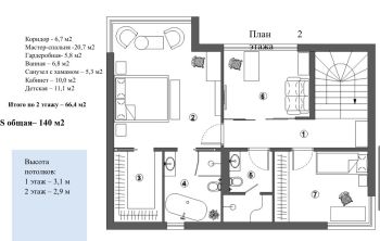
Первый этаж: гостиная, кухня-столовая, прихожая, гардеробная, санузел, бойлерная;
Второй этаж: мастер-спальня со своей гардеробной и санузлом, спальня, санузел с хамамом, детская комната.

Описание поселка

Коттеджный поселок "Ильинские сады" расположен в 6 км от МКАД по Новорижскому шоссе. Поселок окружен реликтовым смешанным лесом. Красота здешних мест с лёгкостью восстанавливают утраченные горожанами связи с природой. Именно здесь нашел своё воплощение новый современный взгляд на активный отдых и комфортное проживание на природе.
Доступ в поселок осуществляется собственниками через организованный въезд, улицы в поселке освещены.

В ближайшей доступности вся инфраструктура поселка Архангельское: школы, детские сады, торговые центры, больницы, кафе, фитнес-клубы и салоны красоты. Рядом расположены: гипермаркеты Леруа Мерлен и Глобус, магазин "Магнит ", музей-заповедник Архангельское (800 м), санаторий Архангельское, музей техники Вадима Задорожного, средняя школа имени А. Н. Косыгина.

Удобное расположение поселка позволяет быстро доехать до центра Москвы как на личном автомобиле, так и на общественном транспорте. В пешей доступности от поселка "Юсуповские сады" строится новая станция метро «Архангельское».
Ближайшая автобусная остановка находится в 900 м от поселка, здесь проходят 9 автобусных маршрутов и 8 маршрутных такси в разные части города Москвы. На автомобиле время в пути до МКАД составит менее 10 минут, а до Москва-Сити менее получаса.

Читать далее

Инфраструктура

На территории поселка:

Лот: 132605971

74000000

983800

840400

Записаться на просмотр
Предложите свою цену
В сравнение В избранное Скачать

150 м2

5.9 соток

3 спальни

Под ключ

Новорижское шоссе

6 км от МКАД

в ипотеку

Ваш персональный менеджер

Васильева Анжелика
Специалист по работе
с загородной недвижимостью

+7 (499) 110-60-98
Перезвонить мне

Похожие предложения

Васильева Анжелика
Специалист по работе
с загородной недвижимостью

Помогу подобрать Вам дом быстро и по привлекательной цене

Расположение поселка

Выбор поселка по шоссе

Дмитровское шоссе
Новорижское шоссе
Горьковское шоссе
Путилковское шоссе
Рогачевское шоссе
Рублево-Успенское шоссе
Всего лотов: 9 лотов
Всего лотов: 1 лот
Всего лотов: 24 лота
Всего лотов: 1 лот
Всего лотов: 20 лотов
Всего лотов: 8 лотов
Всего лотов: 19 лотов
×
Заявка отправлена