Описание

Вашему вниманию представлен дом в КП "Аносино Вилладж", расположенный в 28 км от МКАД по Новорижскому шоссе.
Дом построен из кирпича, крыша - мягкая кровля. В доме отлита лестница. Предусмотрено четыре спальни, одна из них может располагаться на первом этаже.Из гостиной есть выход на участок. Свободная планировка позволит Вам воплотить любой дизайн-проект.
Все центральные коммуникации подведены к дому: газоснабжение, электричество, водоснабжение и канализация.

На участке посажены сосны и выстелен газон. Просторный участок позволяет организовать дополнительные зоны отдыха.

Количество спален: 4

Тип дома: кирпичный

Готовность: Под отделку

Категория земли: ДНП

Охраняемая территория: Да

Есть вопросы по объекту? Звоните

Коммуникации

Газ: Да

Канализация: центральная

Водопровод: центральный

Электричество, кВт: 15

Планировка

Первый этаж: прихожая, гардеробная, постирочная, санузел, спальня, кухня - столовая -гостиная, выход в гараж на два автомобиля, котельную и кладовую
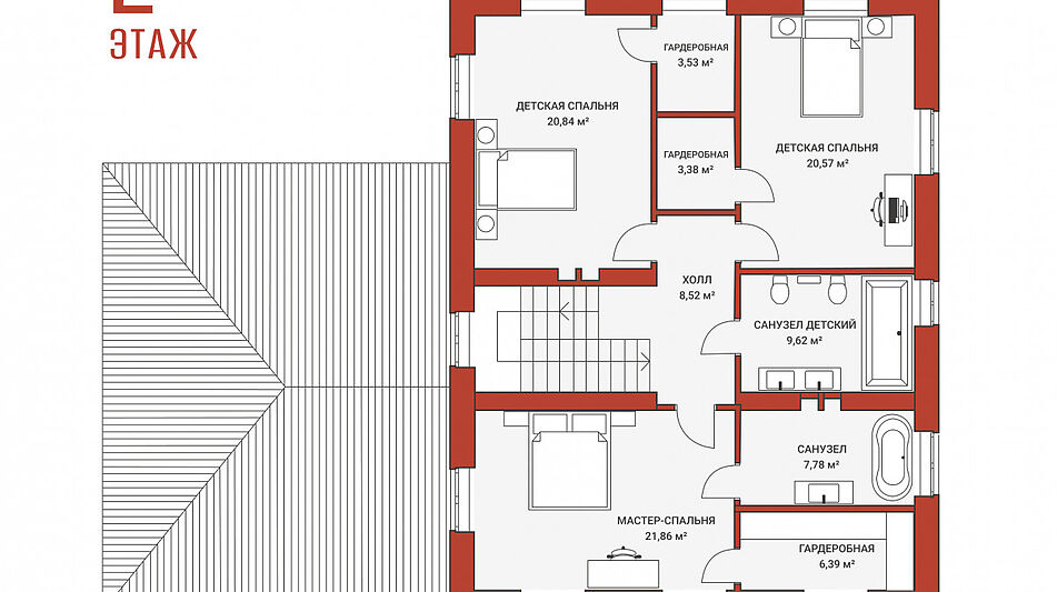
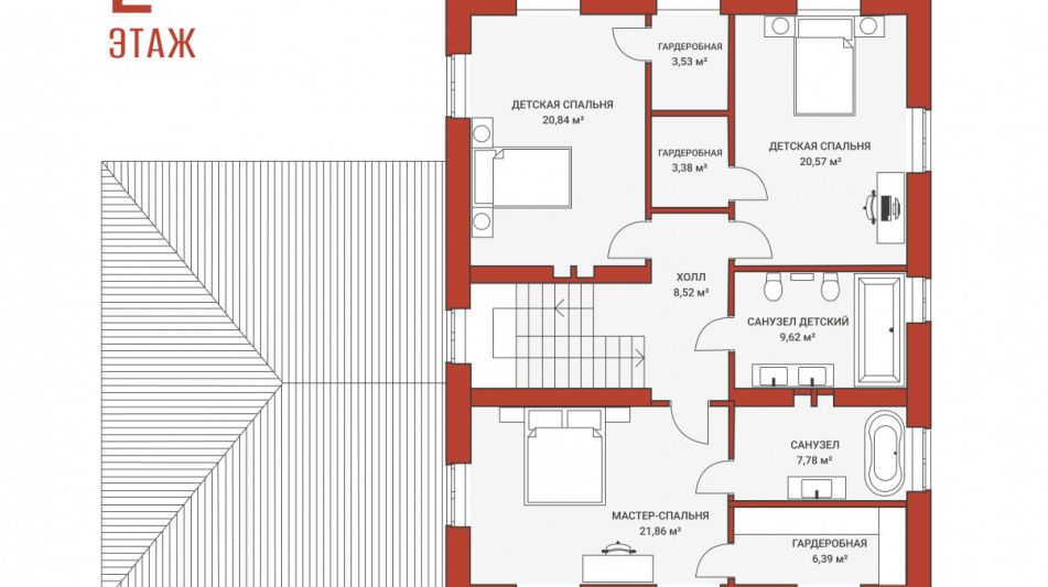
Второй этаж: три спальни, три гардеробных, два санузла
Мансарда: зона отдыха, кладовая, санузел

Описание поселка

Коттеджный поселок ”Аносино Вилладж” расположен в 28 км от МКАД по Новорижскому шоссе. Граничит с коттеджным поселком “Английский Квартал в Аносино” и “Усадьба Аносино”. Территория поселка полностью огорожена, организована въездная группа.
Для детей организована детская площадка, в непосредственной близости работают государственные и частные детские сады: Павловская гимназия, школа МАШ (Международная Английская Школа), частная образовательная школа «Лидер», конно-спортивный комплекс «Дивный», частная школа Wunderpark, ледовый дворец «Лужки» (в составе которого детская хоккейная секция, секция фигурного катания, крытые арены для катания на коньках).

Заботу о здоровье жителей ANOSINO VILLAGE осуществляют расположенные в непосредственной близости медицинский центр «Кантри-Мёд», клиника «Семейная», Ильинская Больница, клинический госпиталь «Мать и Детя», клиника Медси, клиника Чайка.
Проживание в ANOSINO VILLAGE позволяет иметь доступ занятиям спортом на любой вкус, в непосредственной близости от посёлка располагается поместье Agalarov Estate (гольф клуб с бутик отелем и SPA), фитнес-клубы премиум-класса World-Class, Crocus Fitness, салон White Fox.
Жители ANOSINO VILLAGE могут провести свой ужин в расположенном недалеко от посёлка ресторане Моремания, гастробаре Покровский, Vasilchuki Chaihona № 1 и других местных ресторанах. В непосредственной близости от посёлка работают сыроварни и кофейни.
Добраться до поселка можно по комфортному Новорижскому шоссе. Время от МКАД займет до 20 минут.

Читать далее

Инфраструктура

На территории поселка:

Детский сад
Школа
Супермаркет
Ресторан
Фитнесцентр
Детские площадки
Спортивная площадка

Лот: 93655508

37900000

492400

421100

Записаться на просмотр
Предложите свою цену
В сравнение В избранное Скачать

320 м2

6 соток

4 спальни

Без отделки

Новорижское шоссе

28 км от МКАД

Ваш персональный менеджер

Попова Нина
Эксперт по загородной недвижимости

+7 (499) 288-14-79
Перезвонить мне

Похожие предложения

Попова Нина
Эксперт по загородной недвижимости

Помогу подобрать Вам дом быстро и по привлекательной цене

Расположение поселка

Выбор поселка по шоссе

Дмитровское шоссе
Новорижское шоссе
Горьковское шоссе
Путилковское шоссе
Рогачевское шоссе
Рублево-Успенское шоссе
Всего лотов: 9 лотов
Всего лотов: 1 лот
Всего лотов: 24 лота
Всего лотов: 1 лот
Всего лотов: 20 лотов
Всего лотов: 8 лотов
Всего лотов: 19 лотов
×
Заявка отправлена