Для корректной работы сайта выключите VPN

Описание

Вашему вниманию представляется коттедж 500 кв.м., полностью готовый к проживанию на участке 8,45 соток в охраняемом поселке Зеленый Бор. В доме все центральные коммуникации, инженерные системы премиум класса. Фасад облицован немецким клинкерным кирпичом, мягкая кровля.

Перед домом навес для автомобилей, еще отдельный навес для одного автомобиля, гараж для садовой техники, большая беседка, терраса. Выполнен ландшафтный дизайн, автополив газона. Подсветка фасада дома с пульта. Два отдельных въезда с автоматическими воротами. Во дворе мощение немецким клинкером.

Количество спален: 4

Тип дома: кирпичный

Готовность: Готов полностью

Категория земли: Земли нас. пунктов, ИЖС

Бассейн: Да

Сауна: Да

Под ключ: Да

Охраняемая территория: Да

Есть вопросы по объекту? Звоните

Коммуникации

Газ: Да

Канализация: центральная

Водопровод: центральный

Электричество, кВт: 15

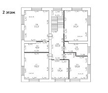
Планировка

Планировка

Цокольный этаж: SPA зона с бассейном, сауной, хамамом, с/у, кинотеатр, мастерская, кладовая с охлаждением, постирочная, бойлерная с отдельным выходом во двор.

Первый этаж: прихожая, гардеробная, гостевой с/у, гостиная, столовая с выходом во двор, кухня, гараж.

Второй этаж: 4 спальни, кабинет, 2 с/у.

Описание поселка

КП «Зеленый Бор» — это гармоничное сочетание живописной природы и современной инфраструктуры. Более 60% территории занимает лесной массив. Поселок располагается в 12 километрах от Москвы по Ярославскому шоссе. До м. ВДНХ 20-30 минут транспортом. До ж/д станции «Зеленый Бор» можно добраться пешком. На территории поселка построено и введено в эксплуатацию около 150 домовладений, строительная готовность коттеджей в поселке 80-85%, не застроенных участков около 10%. Все коммуникации в поселке центральные. Въезд на территорию осуществляется через КПП строго по пропускам. Дороги асфальтированы, проведено уличное освещение. Большая современная детская площадка в центре поселка. На расстоянии 200 метров от поселка есть детский сад и автобусная остановка. В радиусе 5 км вся развитая инфраструктура городов Пушкино, Королев, Ивантеевка: Гипермаркет «Глобус», «Лента», «АШАН», ТЦ «Пушкино Парк» и др.

Читать далее

Инфраструктура

На территории поселка:

Лот: 101152996

99000000

1381400

1188600

Записаться на просмотр
Предложите свою цену
В сравнение В избранное Скачать

500 м2

8.5 соток

4 спальни

Под ключ

Ярославское шоссе

12 км от МКАД

в ипотеку

Ваш персональный менеджер

Кузнецова Елена
Специалист по работе
с загородной недвижимостью

+7 (499) 110-24-95
Перезвонить мне

Похожие предложения

Кузнецова Елена
Специалист по работе
с загородной недвижимостью

Помогу подобрать Вам дом быстро и по привлекательной цене

Расположение поселка

Выбор поселка по шоссе

Дмитровское шоссе
Новорижское шоссе
Горьковское шоссе
Путилковское шоссе
Рогачевское шоссе
Рублево-Успенское шоссе
Всего лотов: 9 лотов
Всего лотов: 1 лот
Всего лотов: 24 лота
Всего лотов: 1 лот
Всего лотов: 20 лотов
Всего лотов: 8 лотов
Всего лотов: 19 лотов
×
Заявка отправлена