Для корректной работы сайта выключите VPN

Описание

Вашему вниманию представлен одноэтажный дом из бруса в коттеджном поселке "Новорижский", расположенный в 27 км от МКАД по Новорижскому шоссе.

Дом 216 кв.м. полностью готов для постоянного проживания. Есть вся необходимая встроенная техника и мебель. В доме две полноценные мастер-спальни со своими санузлами и гардеробными, а также детская спальня. С кухни и главного входа, есть доступ к просторной летней террасе, на которой можно проводить много времени в кругу семьи и друзей. Все коммуникации центральные: газоснабжение, электричество, водоснабжение и канализация. Установлено кондиционирование в гостиной, система видеонаблюдения и охранная система "Гольфстрим". Организована котельная: установлено газовое оборудование и система водоподготовки и водоочистки.

Дополнительно на участке есть гостевой дом 84 кв.м., где можно разместить гостей, а также провести время в бане из кедра или комнате отдыха с отдельным выходом на участок. Для удобства в доме есть своя кухня и санузел с душевой.

Для любителей приготовления еды на свежем воздухе, есть летняя беседка, где также организована место отдыха и обеденная зона.

Участок 13 соток полностью благоустроен и утопает в зелени. Правильная планировка на участке оставляет свободное место для времяпрепровождения на улице. По периметру высажены большие туи, что делает участок приватным. Большие ели дополняют ландшафт. Для поддержания растений в необходимых условиях установлен автополив. На придомовой территории организована большая открытая парковка. Установлены ворота с электроприводом для комфортного доступа на участок.

Если Вы ищите дом в который можно заехать прямо сейчас и наслаждаться загородной жизнью - это предложение подходит для Вас!
Звоните! Мы ответим на все Ваши вопросы и организуем просмотр!

Количество спален: 3

Площадь комнат: 10, 10, 10

Санузел: совмещенный

Жилая площадь: 30

Тип дома: Брус

Готовность: Готов полностью

Категория земли: Земли нас. пунктов, ИЖС

Сауна: Да

Есть вопросы по объекту? Звоните

Коммуникации

Газ: Да

Канализация: центральная

Водопровод: центральный

Электричество, кВт: 15

Планировка

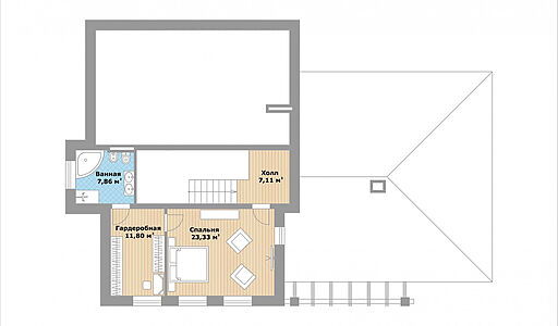
Планировка основного дома:
прихожая, кухня - гостиная - столовая, санузел с выходом в постирочную и котельную, две мастер-спальни с гардеробными и санузлами с ванной, спальня

Планировка гостевого дома:
Большая спальня, кухня, санузел, баня на дровах, комната отдыха, душевая, помещение свободного назначения

Описание поселка

Коттеджный поселок Новорижский находится в 27 км от МКАД по Новорижскому шоссе в окружении лесного массива. В «Новорижском» можно купить новые дома, выполненные под ключ или под отделку, дома из бруса, натурального кирпича или газосиликатных блоков, которые расположены у озера, канала или рядом с парком. А также участок и построить дом по своему индивидуальному проекту.
Территория поселка полностью огорожена, организовано несколько въездом, что создает каждому жителю комфортный доступ к своему дому. Дороги асфальтированы, сделаны широкие бульвары, установлено освещение, осуществляется круглосуточное патрулирование территории. Все коммуникации центральные: газоснабжение, электричество, канализация и водопровод.
В поселке созданы водные каналы и благоустроены три парковые зоны с озерами. У одного из озер создан пляж для купания. Продуманное расположение детских и спортивных площадок дает возможность комфортно проводить время как совсем маленьким детям, так и подросткам. Для детей также построены частные сады: "Baby Teddy", "Дивный Сад", "Casa Dei Bambini XXL", "Binny" и школы: "Покровская гимназия", "Новорижская школа", "Junior School", "Лицей", "Академия Знаний".

К внешней высокоразвитой инфраструктуре относятся близко расположенные торговые и спортивно-развлекательные центры с бассейнами и СПА-комплексами: Novaya Riga Outlet Village, ТЦ Pokrovsky, клуб-ресторан Ribambelle Village, Agalarov Golf & Country Club расположены всего в 3–5 минутах на машине. В пешей доступности находится продуктовый магазин со всеми товарами первой необходимости.
Удобное расположение поселка обеспечивает мобильность его жителей. Прямой выезд на скоростное Новорижское шоссе позволяет максимально быстро добраться до Москвы. Время в пути займет 20 минут.

Если вы цените жизнь на природе и городской комфорт, то это лучшее место для проживания и отдыха.
LETO Estate подберет для Вас идеальный вариант загородной жизни. Получите полный каталог всех предложений в коттеджном поселке Новорижский.

Читать далее

Инфраструктура

На территории поселка:

Детский сад
Школа
Супермаркет
Ресторан
Медцентр
Фитнесцентр
Парк
Салон красоты
Детские площадки
Теннисный корт
Футбольное поле
Спортивная площадка

Лот: 102883710

71900000

1007500

859200

Записаться на просмотр
Предложите свою цену
В сравнение В избранное Скачать

300 м2

13 соток

3 спальни

Под ключ

Новорижское шоссе

27 км от МКАД

в ипотеку

Ваш персональный менеджер

Попова Нина
Эксперт по загородной недвижимости

+7 (499) 288-14-79
Перезвонить мне

Похожие предложения

Попова Нина
Эксперт по загородной недвижимости

Помогу подобрать Вам дом быстро и по привлекательной цене

Расположение поселка

Выбор поселка по шоссе

Дмитровское шоссе
Новорижское шоссе
Горьковское шоссе
Путилковское шоссе
Рогачевское шоссе
Рублево-Успенское шоссе
Всего лотов: 9 лотов
Всего лотов: 1 лот
Всего лотов: 24 лота
Всего лотов: 1 лот
Всего лотов: 20 лотов
Всего лотов: 8 лотов
Всего лотов: 19 лотов
×
Заявка отправлена