Описание

Вашему вниманию представлен дом площадью 275 кв. м в охраняемом коттеджном посёлке бизнес класса «Чистые пруды», расположенном в 21 км от МКАД по Минскому шоссе.
Предлагаемый дом, это сочетание инвестиционной цены и качество материалов строительства, которые обычно значительно увеличивают стоимость объекта. Фундамент свайно-ростверкового типа, стены из клееного бруса с ручной шлифовкой, кровля из долговечной глиняной. Все центральные коммуникации (газоснабжение, электроснабжение, холодное водоснабжение, канализация, оптоволоконный интернет) уже подведены. Продуманная планировка дома с тремя изолированными комнатами. На участке имеется готовый фундамент под патио позволит сразу приступить к созданию зоны отдыха.

Количество спален: 3

Тип дома: Брус

Готовность: Недострой

Категория земли: Земли нас. пунктов, ИЖС

Охраняемая территория: Да

Есть вопросы по объекту? Звоните

Коммуникации

Газ: Да

Канализация: центральная

Водопровод: центральный

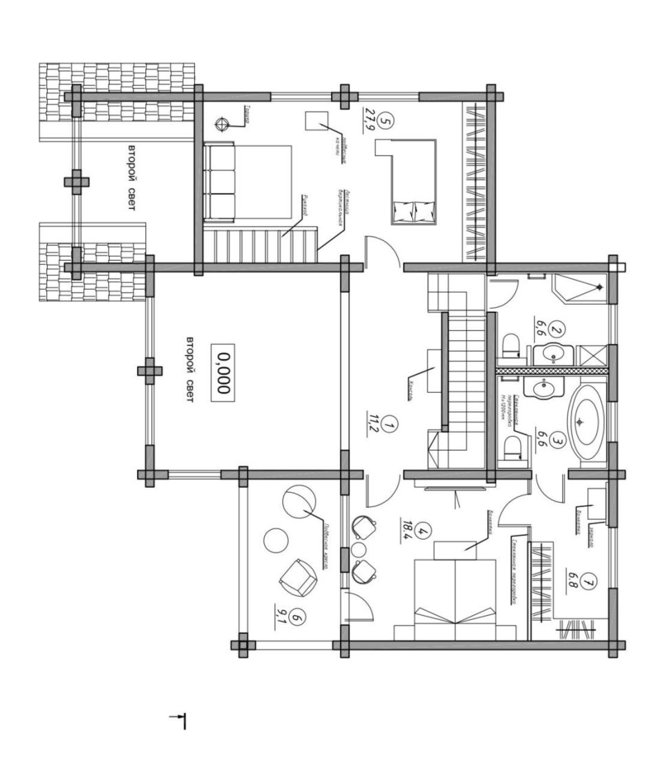
Планировка

Первый этаж: холл, гардероб, кабинет, гостиная с вторым светом, кухня-столовая, сауна, санузел и большая терраса;
Второй этаж: холл, две мастер-спальни с гардеробом и санузлом.

Описание поселка

Коттеджный поселок «Чистые Пруды» расположен в 21 км от МКАД по Минскому шоссе в экологически чистом районе Новой Москвы, полностью обустроенный и обжитый поселок бизнес-класса, где каждая деталь продумана для вашего комфорта.
На территории в 33 га разместились 235 домовладений, здесь представлены просторные коттеджи, а также изысканные таунхаусы и многоуровневые квартиры-мезонеты с большими собственными участками. Все постройки выдержаны в едином архитектурном стиле.
Гордость КП «Чистые Пруды» — выход к реке Алёшкино, где в спокойной атмосфере можно насладиться прогулкой вдоль реки и чистым воздухом.
Поселок находится под круглосуточной охраной с двумя контрольно-пропускными пунктами. Все центральные коммуникации (газоснабжение, электроснабжение, холодное водоснабжение, канализация, оптоволоконный интернет) уже подключены и исправно функционируют под управлением профессиональной управляющей компании.
В пешей доступности от поселка имеется всё необходимое для комфортной жизни: государственная и известная частная школа «Премьерский лицей» с детским садом, супермаркеты, фермерский рынок, рестораны и кафе. В 12 минутах езды на авто находятся еще две престижные частные школы. Близлежащий загородный клуб «Александр» предлагает дополнительные возможности для отдыха и развлечений.
Поселок расположен в 23 км от МКАД в экологически чистом районе Новой Москвы, что обеспечивает легкий выезд как на Киевское, так и на Минское шоссе. Всего 30 минут по платной трассе — и вы в сердце деловой жизни, в Москва-Сити. Для тех, кто предпочитает общественный транспорт, в 2,5 км находится станция МЦД-4 «Крекшино», до которой можно дойти пешком за 30 минут или доехать за несколько минут на автомобиле.
«Чистые Пруды» — это место, где вы покупаете не просто недвижимость, а готовую, насыщенную и спокойную жизнь в окружении леса и воды, не отказываясь от благ цивилизации и карьерных возможностей столицы.

Читать далее

Инфраструктура

На территории поселка:

Прогулочная набережная

Лот: 126175825

27000000

354900

302000

Записаться на просмотр
Предложите свою цену
В сравнение В избранное Скачать

275 м2

23 сотки

3 спальни

Без отделки

Минское шоссе

21 км от МКАД

Ваш персональный менеджер

Гроздова Анастасия
Специалист по работе
с загородной недвижимостью

+7 (499) 117-03-56
Перезвонить мне

Похожие предложения

Гроздова Анастасия
Специалист по работе
с загородной недвижимостью

Помогу подобрать Вам дом быстро и по привлекательной цене

Расположение поселка

Выбор поселка по шоссе

Дмитровское шоссе
Новорижское шоссе
Горьковское шоссе
Путилковское шоссе
Рогачевское шоссе
Рублево-Успенское шоссе
Всего лотов: 9 лотов
Всего лотов: 1 лот
Всего лотов: 24 лота
Всего лотов: 1 лот
Всего лотов: 20 лотов
Всего лотов: 8 лотов
Всего лотов: 19 лотов
×
Заявка отправлена