Описание

Вашему вниманию представляется новый дом под отделку в современном стиле в коттеджном поселке Березки River Village. Удачное расположение в самом центре поселка.

Удобная планировка идеально подойдет для комфортного проживания семьи любого состава. Участок правильной прямоугольной формы, соседи с двух сторон. Котельная выполнена под ключ, дом отапливается.

На участке есть возможность построить дополнительные строения. Разработан проект с возможностью увеличения площади до 1 200м2, где предусмотрен бассейн, гостевой блок, техническая/рабочая кухня. Так же спроектирован гараж на 4-6 машиномест с четырехкомнатной квартирой для персонала.

Количество спален: 4

Тип дома: кирпичный

Готовность: Под отделку

Категория земли: Земли нас. пунктов, ИЖС

Охраняемая территория: Да

Есть вопросы по объекту? Звоните

Коммуникации

Газ: Да

Канализация: центральная

Водопровод: центральный

Электричество, кВт: 25

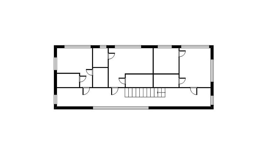
Планировка

Планировка

Первый этаж: холл, гардеробная, гостевой туалет, гараж на два м/м, кабинет/спальня первого этажа, просторная зона кухни-гостиной обеденной.

Второй этаж: холл , мастер спальня с гардеробной и санузлом, две спальни со своими гардеробными и санузлами.

Описание поселка

Коттеджный поселок “Березки River Village” расположен в 18 км от МКАД по Рублево-Успенскому шоссе.

Поселок находится в удивительно красивой березовой роще. Частные домовладения, возведенные по проекту ведущего швейцарского архитектурного бюро Schindler Partner. Аккуратно и грамотно “вписаны” в окружающий природный ландшафт. Все дома оформлены в европейском стиле, с прозрачными панорамными окнами и высокими потолками. Территория поселка охраняется профессиональным частным охранным предприятием. Наблюдение за безопасностью проводится благодаря установленным камерам видеонаблюдения и частым обходам периметра. На въезде установлен шлагбаум, организована два заезда в поселок. В поселке все центральные коммуникации: газоснабжение, электричество, вода и канализация. В домовладения заведены интернет и телефон, а также установлены спутниковые антенны. Возникающими бытовыми вопросами, связанные с исправной работой коммуникационных систем, занимается управляющая компания.

Неотъемлемой частью поселка является река, на берегах которой организованы зоны отдыха и пляжи. Река Медвенка находится с двух сторон поселка. Некоторые дома на своей территории имеют непосредственный выход к воде и собственные пикниковые зоны. Ухоженные улочки, выстриженный газон придомовых участков и зоны отдыха в березовой роще придают уют и шарм, ощущение тишины и покоя.

Поселок расположен в самом сердце элитной Рублевки, его жителям доступны все ее инфраструктурные объекты. В шаговой доступности функционирует частная школа Cambridge International School с британской системой образования, детский сад, а также крытый каток.

Добраться до поселка на личном транспорте можно за 20 минут от МКАД по Рублево-Успенскому шоссе. Дополнительно можно воспользоваться высокоскоростной платной трассой М1, время в пути составит 15 минут от МКАД. Используя, Северный дублер Кутузовского проспекта время в пути до “Москва-Сити” – 30 минут.

Читать далее

Инфраструктура

На территории поселка:

Детский сад
Школа
Супермаркет
Детские площадки
Спортивная площадка

Лот: 101180996

210000000

2728300

2333100

Записаться на просмотр
Предложите свою цену
В сравнение В избранное Скачать

585 м2

28.5 соток

4 спальни

Без отделки

Рублёво-Успенское шоссе

18 км от МКАД

в ипотеку

Ваш персональный менеджер

Сайфутдинов Тимур
Руководитель отдела
продаж Новая Рига

+7 (499) 117-03-67
Перезвонить мне

Похожие предложения

Сайфутдинов Тимур
Руководитель отдела
продаж Новая Рига

Помогу подобрать Вам дом быстро и по привлекательной цене

Расположение поселка

Выбор поселка по шоссе

Дмитровское шоссе
Новорижское шоссе
Горьковское шоссе
Путилковское шоссе
Рогачевское шоссе
Рублево-Успенское шоссе
Всего лотов: 9 лотов
Всего лотов: 1 лот
Всего лотов: 24 лота
Всего лотов: 1 лот
Всего лотов: 20 лотов
Всего лотов: 8 лотов
Всего лотов: 19 лотов
×
Заявка отправлена