Описание

Комфортабельный дом с обилием окон и света & стильный готовый дом!

Вашему вниманию представляется два современных дома, расположенных в благоустроенном коттеджном поселке «Некрасовское», в 23 км от МКАД по Дмитровскому шоссе. Это идеальное место для тех, кто ценит комфорт, природу и быструю доступность к городу.

Представленный объект включает в себя гостевой дом «под ключ», выполненный в концепции «Barn House», площадью 81 кв. м и основной дом «под отделку», площадью 205,7 кв.м.

Гостевой дом в стиле "Barn House" - отделан, меблирован и полностью готов к проживанию. Внутри Вы найдёте лаконичный интерьер, благодаря чему, дом наполнен легкостью и уютом. Особенность этого стиля — двусветное пространство, высокие потолки и минимум внутренних перегородок, что придаёт дому индивидуальность и особую привлекательность.

Основной дом «под отделку» построен в 2023 году и прекрасно подходит для комфортного проживания большой и дружной семьи, предоставляя возможность создать внутреннюю обстановку по своим предпочтениям и вкусу.

Технические характеристики основного дома: стены - газосиликатные блоки (400 мм), фундамент - плита (300 мм) на забивных сваях, перекрытия - деревянные, кровля - металлочерепица, фасадная система АМК.

Оба дома находятся на просторном участке площадью 12,31 соток, который расположен в уединенной части поселка, рядом с лесом и прудом, что позволит Вам насладиться тишиной и забыть о повседневных заботах и стрессе. Также на участке есть место для отдыха с навесом и сибирским чаном на дровах, мангальная зона, площадка для парковки шести автомобилей и открытый бассейн. Удобный подъезд к участку организован с двух сторон, что обеспечивает комфорт и удобство передвижения.

Коммуникации: электричество 15 кВт, магистральны газ, водоснабжение – скважина глубиной 35 метров, канализация – септик, интернет - оптоволокно.

Количество спален: 7

Тип балкона: 2 балкона

Санузел: 4

Тип дома: Газобетон

Готовность: Под отделку

Категория земли: ДНП

Бассейн: Да

Лесной участок: Да

Под ключ: Да

Охраняемая территория: Да

Есть вопросы по объекту? Звоните

Коммуникации

Газ: Да

Канализация: Септик

Водопровод: скважина

Электричество, кВт: 30

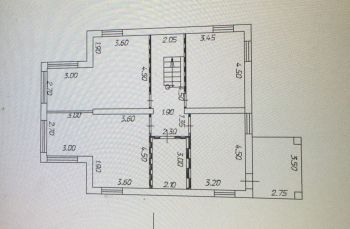
Планировка

Планировка гостевого дома:
Первый этаж: прихожая, санузел с ванной, кухня, столовая с выходом на террасу, гостиная, котельная, санузел, терраса с зоной отдыха и сибирским чаном на дровах.
Второй этаж: две спальни.

Планировка основного дома:
Первый этаж: прихожая, котельная, холл, спальня, санузел, кухня - столовая с выходом на участок, гостиная.
Второй этаж: четыре спальни, санузел.

Описание поселка

Невероятно удачное расположение поселка Некрасовский вблизи нескольких водохранилищ, горнолыжных курортов и загородных отелей. Удобная транспортная доступность - съезд на Дмитровское шоссе в 2 км, станция МЦД Катуар - благодаря ее наличию есть возможность добраться до Савеловского вокзала менее чем за 50 минут.
В поселке развита вся необходимая инфраструктура: три детских сада, школа, поликлиника, супермаркеты, конно-спортивный комплекс "Максима Парк" с фитнесом, бассейном и большой прогулочной территорией.

Читать далее

Инфраструктура

На территории поселка:

Детский сад
Супермаркет
Ресторан
Парк
Детские площадки

Лот: 57044564

18000000

233200

196300

Записаться на просмотр
Предложите свою цену
В сравнение В избранное Скачать

286 м2

12.3 соток

7 спален

Под ключ

Лесной участок

Дмитровское шоссе

21 км от МКАД

в ипотеку

Ваш персональный менеджер

Руденко Мария
Специалист по работе
с загородной недвижимостью

+7 (499) 288-14-35
Перезвонить мне

Похожие предложения

Руденко Мария
Специалист по работе
с загородной недвижимостью

Помогу подобрать Вам дом быстро и по привлекательной цене

Расположение поселка

Выбор поселка по шоссе

Дмитровское шоссе
Новорижское шоссе
Горьковское шоссе
Путилковское шоссе
Рогачевское шоссе
Рублево-Успенское шоссе
Всего лотов: 9 лотов
Всего лотов: 1 лот
Всего лотов: 24 лота
Всего лотов: 1 лот
Всего лотов: 20 лотов
Всего лотов: 8 лотов
Всего лотов: 19 лотов
×
Заявка отправлена