Описание

Вашему вниманию представляется стильный барнхаус расположенный в поселке "Озерецкое" на видовом участке 11,3 соток, в 19 км от МКАД по Рогачевскому шоссе.
Дом общей площадью 220 кв.м. строился по индивидуальному проекту архитектурной мастерской Рината Гильмутдинова в стиле барнхаус. В отделке дома использован уникальный кирпич 18 века ручной формовки. Пространство продумано таким образом, чтобы максимально создать семейный уют, благодаря просторной кухне-столовой, высоким потолкам и панорамным окнам с видом на озеро Нерское.
Дом построен по монолитно-каркасной технологии, стены газобетон D500, толщина 400 мм, кровля фальцевая - система "Клицфальц", остекление 5-ти камерный профиль Rehau Grazio. Заведено электричество и установлен септик, дом полностью готов для выполнения внутренней отделки.

Количество спален: 4

Тип балкона: терраса

Тип дома: Газобетон

Готовность: Требует ремонта

Категория земли: Земли сельхоз. назначения, ЛПХ

Охраняемая территория: Да

Есть вопросы по объекту? Звоните

Коммуникации

Газ: Да

Канализация: Септик

Водопровод: скважина

Электричество, кВт: 15

Планировка

Первый этаж: прихожая, гардеробная, котельная, кухня-столовая-гостиная с выходом на террасу, санузел, спальня.
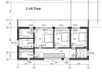
Второй этаж: мастер-спальня с санузлом и гардеробной, санузел, гардеробная, две спальни.

Описание поселка

Село Озерецкое расположено в 19 км от МКАД по Дмитровскому шоссе. Также до села можно добраться по Ленинградскому и Рогачевскому шоссе. Рядом находится крупный населенный пункт - город Лобня.

Читать далее

Инфраструктура

На территории поселка:

Детский сад
Школа
Супермаркет
Ресторан
Медцентр
Фитнесцентр
Салон красоты
Детские площадки
Спортивная площадка

Лот: 107139547

27900000

358500

306000

Записаться на просмотр
Предложите свою цену
В сравнение В избранное Скачать

220 м2

11.3 соток

4 спальни

Без отделки

Рогачёвское шоссе

19 км от МКАД

в ипотеку

Ваш персональный менеджер

Глухов Макар
Ведущий специалист по работе
с загородной недвижимостью

+7 (499) 288-19-81
Перезвонить мне

Похожие предложения

Глухов Макар
Ведущий специалист по работе
с загородной недвижимостью

Помогу подобрать Вам дом быстро и по привлекательной цене

Расположение поселка

Выбор поселка по шоссе

Дмитровское шоссе
Новорижское шоссе
Горьковское шоссе
Путилковское шоссе
Рогачевское шоссе
Рублево-Успенское шоссе
Всего лотов: 9 лотов
Всего лотов: 1 лот
Всего лотов: 24 лота
Всего лотов: 1 лот
Всего лотов: 20 лотов
Всего лотов: 8 лотов
Всего лотов: 19 лотов
×
Заявка отправлена