Описание

Вашему вниманию предлагается просторный современный дом под отделку на первой линии живописного озера в поселке Форелевое Хозяйство, расположенном в 10 км от МКАД по Новосходненскому шоссе. Месторасположение объекта уникально по своим видовым характеристикам, дом стоит на возвышении, перед домом простирается огромное озеро Форелевого Хозяйства, за домом располагается большой лесной массив.

Дом построен из кирпича на монолитном фундаменте, с монолитными перекрытиями.
Дом сочетает в себе неординарную современную архитектуру и комфортную концепцию для жизни: теплый гараж, функциональный цоколь, удобная планировка.

Планировка включает огромную кухню-столовую, большую гостиную с выходом на террасу и шесть спален, СПА-комплекс в цокольном этаже. Выполнена частичная черновая отделка: стены оштукатурены и подготовлены под покраску, разведено электричество, водопровод, канализация, отопление, установлены радиаторы отопления. Также выполнена чистовая отделка котельной и мансардного этажа.

Отличительной особенностью является наличие большой мансарды с панорамными окнами и эксплуатируемой кровли, позволяющими проводить время, любуясь потрясающими видами или принимая солнечные ванны.

Дом расположен на прямоугольном ровном участке площадью 12 соток (фактически 16), вокруг дома сделана отмостка, выполнен дренаж дома и участка, залиты бетоном площадки для парковки авто. . На участке также построен дом охраны (для гостей) площадью 60 кв.м.

Территория участка огорожена забором, есть выход в лес, соседи только с двух сторон, что позволяется наслаждаться уединением и тишиной.

Коммуникации: вода- колодец, канализация - септик Топаз, газ - перспектива, на участке закопан газгольдер и емкость для жидкого топлива, Электричество 12,5 кВт 380В с возможностью увеличения до 27,5 кВТ.

Количество спален: 5

Тип дома: Монолитный

Готовность: Под отделку

Категория земли: Земли сельхоз. назначения, ЛПХ

Сауна: Да

Вид на воду: Да

Есть вопросы по объекту? Звоните

Коммуникации

Газ: Нет

Канализация: Септик

Водопровод: скважина

Электричество, кВт: 15

Планировка

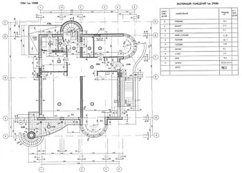
Первый этаж: крыльцо, холл, кабинет (гостевая спальня), гардеробная, гостевой санузел, огромная кухня-столовая, гостиная с выходом на террасу, спальня первого этажа с собственным санузлом
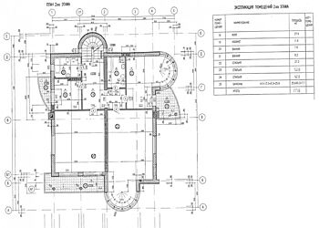
Второй этаж: холл, санузел, три изолированные спальни, мастер-спальня с санузлом и выходом на балкон, два больших видовых балкона.
Мансарда: помещение свободной планировки, санузел, выход на кровлю.
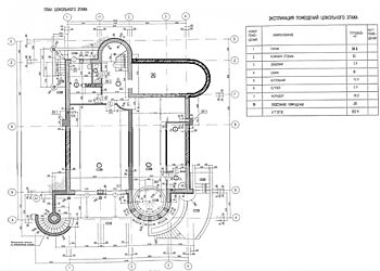
Цоколь: гараж на два авто, коридор, сауна, купель, санузел, душевая, комната отдыха, кладовая комната, прачечная, котельная.

Описание поселка

Поселок Форелевое Хозяйство Сходня в уникальном экологически чистом месте между огромным лесным массивом и большим озером Форелевого Хозяйства. При этом расположен всего в 3-х километрах от района Москвы Куркино и в 10 км в от МКАД по Ленинградскому и Новосходненскому шоссе.
Дорога в поселок ведет тупиковая, поэтому нет сквозного траффика через поселок, что гарантирует уединение и тишину.
Несмотря на свое уединенное расположение, инфраструктура вокруг поселка очень развита. В нескольких минутах езды находятся: торговый центр Мега, Природный заказник Долина реки Сходни, несколько конно-спортивных клубов, включая крытый манеж ФОК Планерная, Олимпийский бассейн Мастер, школа №19, Никольский храм, садовый центр, фитнес центр GoFit, батутный центр Go Jump, скейт-парк Go Park, лыжно-роллерная трасса, детский сад Дети и Солнышко, Гиназия №23, спортивная школа ЦКС Агацукан , городская больница, поликлиника, клиника Инвитро, множество супермаркетов и кафе, а также другая инфраструктура микрорайона Сходня и района Москвы Куркино. Также в непосредственной близости от поселка ведется строительство горнолыжного склона.
Добраться до поселка можно по Новосходненскому шоссе на личном автотранспорте. Время в пути займет до 15 минут. Также около 5 минут займет дорога на такси от станции МЦД Новоподрезково D3 (Наземное метро).

Читать далее

Инфраструктура

На территории поселка:

Детский сад
Школа
Супермаркет
Ресторан
Автомойка
Салон красоты
Химчистка
ЖД станция
Детские площадки
Спортивная площадка

Лот: 67719323

34900000

448500

382700

Записаться на просмотр
Предложите свою цену
В сравнение В избранное Скачать

800 м2

12 соток

5 спален

Без отделки

1 линия от воды

Новосходненское шоссе

10 км от МКАД

в ипотеку

Ваш персональный менеджер

Коваленко Иван
Специалист по работе
с загородной недвижимостью

+7 (499) 110-46-13
Перезвонить мне

Похожие предложения

Коваленко Иван
Специалист по работе
с загородной недвижимостью

Помогу подобрать Вам дом быстро и по привлекательной цене

Расположение поселка

Выбор поселка по шоссе

Дмитровское шоссе
Новорижское шоссе
Горьковское шоссе
Путилковское шоссе
Рогачевское шоссе
Рублево-Успенское шоссе
Всего лотов: 9 лотов
Всего лотов: 1 лот
Всего лотов: 24 лота
Всего лотов: 1 лот
Всего лотов: 20 лотов
Всего лотов: 8 лотов
Всего лотов: 19 лотов
×
Заявка отправлена